Stoke Newington House Victorian mid-terrace, Northeast London home extension photos, Hackney modern property
Stoke Newington House, Northeast London
16 December 2025
Design: Ambient Studio
Location: Stoke Newington, Hackney, Northeast London, England, UK
Photos: Lorenzo Zandri
Stoke Newington House, Northeast London Property
Stoke Newington House is the extension and full refurbishment of a Victorian mid-terrace in Stoke Newington, Hackney, London. The project reworks a familiar London terrace typology, transforming a dark, compartmentalised three-bedroom house into a calm, light-filled four-bedroom family home that is closely connected to a lush south-facing garden.
The house sits mid-terrace on a quiet residential street and is attached to a neighbour whose garden level is around 1.5 metres lower. This step in levels creates sensitivities around height, massing and overshadowing, which shaped both the planning strategy and the architectural response.
The project had to open and enlarge the house while remaining modest and neighbourly, avoiding a sense of an overbearing extension to the lower garden next door.
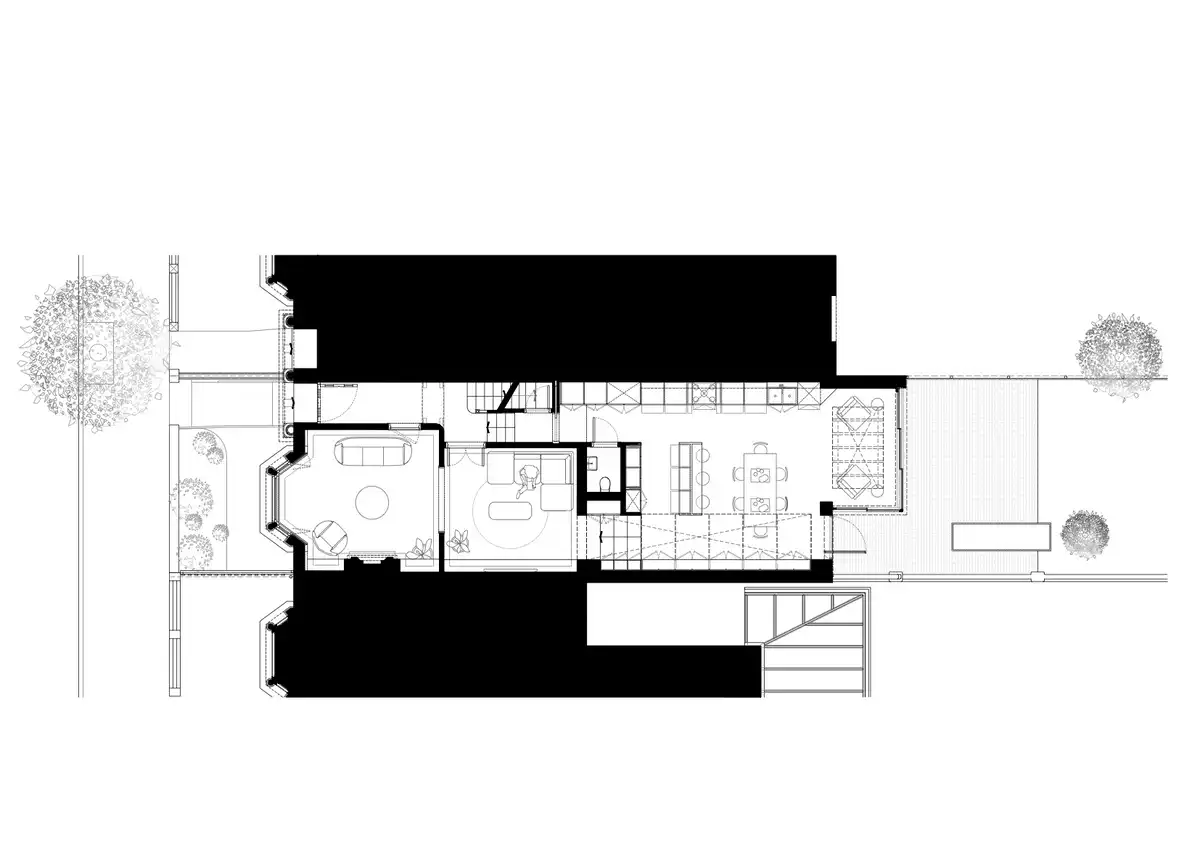
At ground floor, a combined side-infill and rear extension replaces a sequence of cellular rooms with a generous kitchen–dining space that now forms the social heart of the home. Two new axes are established from the entrance to the garden, pulling the plan together and framing long views through the house. A stepped, full-height glazed façade maximises daylight and views of planting, while visually breaking down the mass of the extension when seen from the adjacent garden.
Above the side-infill, an L-shaped rooflight brings light in from multiple directions and marks the junction between old and new structure. Additional reconfigurations on this level introduce a cloakroom and a central snug, loosely connected to the more formal front reception, so the family can occupy the ground floor in different ways throughout the day – from quiet reading to larger gatherings.
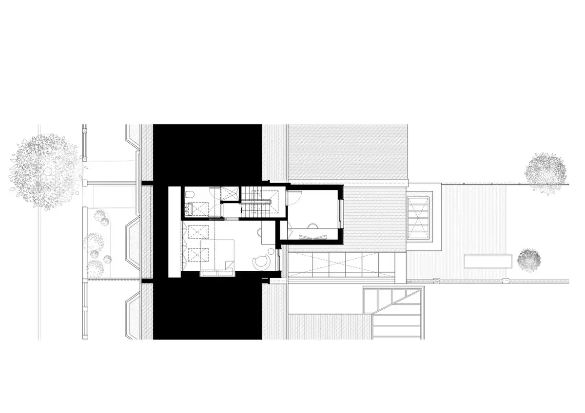
The upper floors are completely reworked. On the first floor, the plan is reorganised to form a master suite with walk-in wardrobe and ensuite, a family bathroom, a second bedroom and a built-in laundry and pantry that support everyday routines. A new outrigger roof extension and a rear dormer add a third storey containing a home study and guest bedroom with its own ensuite, giving the house greater flexibility over time as work patterns and family needs evolve. Rooflights above the stair and the ensuite shower bring daylight into the depth of the plan and create small, everyday moments of connection to the sky.
Externally, the extension is expressed as a lightweight contemporary addition to the original masonry terrace. Pale brickwork, slim light-toned aluminium framing and refined head detailing to the full-height “infinity-effect” glazing give the new volume a slender, almost pavilion-like character when seen from the garden.
The stepped profile and controlled eaves height help the addition sit quietly alongside the lower neighbouring property, resolving the 1.5-metre level difference without dominating it. Internally, a restrained palette of natural, earthy materials ties together old and new fabric. Fluted oak joinery, stone flooring that continues from interior to terrace, and warm brass details are set against soft, neutral tones, creating spaces that feel calm and robust enough for everyday family life.
Alongside the spatial reconfiguration, the project upgrades the existing envelope with improved insulation, high-performance glazing and more carefully controlled openings. These interventions quietly improve thermal comfort and energy performance compared with the original Victorian house, supporting the clients’ intention to remain in the home long term. Stoke Newington House extension and refurbishment
CLIENT QUOTE
Our brief for Ambient Studio was to create a serene house that celebrates the outside from within, is flooded with natural light, and is designed thoughtfully for our growing family.
Creating ‘moments’ was integral to our design-stage conversations so we are delighted that our home now delivers these special experiences and feelings every day. We particularly love how our kitchen & dining excitedly pulls all of the colour and brightness from the outside garden and sky to the inside.
Stoke Newington House, London – Property Information
PROJECT INFORMATION / FACTS
Project Title:
Stoke Newington House
Location:
Stoke Newington, Hackney, London
Scope:
Ground Floor Extension / Roof Extension / Full Reconfiguration & Refurbishment
Building / Accommodation:
Existing: Victorian Mid-Terrace / 2-Storey – 3-Bedrooms / 1-Bathroom
Completed: Victorian Mid-Terrace / 3-Storey – 4-Bedrooms / 3-Bathrooms
Floor Areas:
Existing: 110.3 sq.m
Completed: 165.0 sq.m
Dates:
Construction: 2023-2024
Completion: 2024
Cost:
Approx. Project Cost: £600,000 (including interior design, fixtures, fittings and landscaping)
Team / Credits:
Architect: Ambient Studio
Structural Engineer: Elite Designers
Contractor: Tandem London
Photographer: Lorenzo Zandri
DRAWINGS
SECTIONS
PLANS
All drawings are provided by Ambient Studio, who retain copyright ownership over all drawings.
Stoke Newington House, Victorian mid-terrace home images / information receved 151225 from Ambient Studio
Location: Stoke Newington, London, England, UK
Stoke Newington Properties
Stoke Newington Homes – recent property selection from e-architect:
Verdant House Stoke Newington
Architects: CAN

photo © Rick Pushinsky
The Studio in Stoke Newington
Design: Bradley Van Der Straeten Architects

photo : Ewald Van Der Straeten
Barretts Grove House in Stoke Newington
Design: Amin Taha + Groupwork
Newington Green House in London
Stoke Newington School Building
Don’t Move, Improve! Competition
Sun Rain Rooms by Tonkin Liu winner of Don’t Move, Improve! 2018
Mapledene Road, Hackney:
++
London Building Designs
Contemporary London Architectural Designs
London Architecture Links – chronological list
London Architecture Tours – bespoke UK capital city walks by e-architect
London Architect Offices
++
Houses in London
Step House North London Property Extension
Elm Court House, North London
Comments / photos for the Stoke Newington House, Victorian mid-terrace home, Stoke Newington, northeast London page welcome.





















