York Centre of Excellence for heritage craft skills, Yorkshire architecture news, English building design
York Minster Centre of Excellence Building News
2 November 2025
Heritage Quad and Tech Hub, York Minster Centre of Excellence for Heritage Craft
Design: tonkin liu
York Minster Centre of Excellence Building Design News
Stepping up to the challenges of caring for heritage buildings in the 21st century has become increasingly urgent, with only 13 cathedrals of the 42 Anglican Cathedrals continuing to have dedicated craftspeople. York Minster Centre of Excellence consists of two new buildings built into existing structures, aiming to conserve traditional craft skills and embrace advanced digital tools.
Embedded in the clients’ brief was a wish for the buildings to “make a bold statement in low-carbon development, whilst sitting quietly in their context, confidently putting a 21st century mark” enabling the future financial and environmental sustainability of caring for complex heritage buildings. With radial and fan-vaulted timber roof structures, the two buildings have been designed to amplify their inherent typologies: the square of a courtyard, the circle of a community, and the triangle of the work yard, towards archetypal symbols inspiring visitors and the next generations of craftspeople.
Developed through international cooperation and an apprenticeship program, York Minster Centre of Excellence has established York Minster as the vanguard of heritage, research, advancement in digital masonry fabrication technology, and commitment to training and craftsmanship. The first significant new building project in the Minister’s precinct in a century, the two new buildings, Heritage Quad and Tech Hub, will help accelerate the restoration of heritage buildings by four decades within the next century.
Stone is delivered directly from the quarry to the Tech Hub, where large blocks are cut and prepared for delicate, hand-finishing in the Heritage Quad. New masonry equipment includes digital 5-axis and bridge saws, fifteen work benches with advanced dust extraction systems. Both buildings utilise and integrate existing walls and foundations.
Both use structure and geometry to optimise norther light, connect key views across York, whilst responding to their settings and internal programmatic relationships. As architects, landscape architects, place-makers,Tonkin Liu has endeavoured to build a synergy with the cathedral’s garden setting, the precinct’s scale, the connected urban views, materiality and texture, as well as the overarching idea of the centre for heritage craft within an ecclesiastical setting. The practice drew clues from predominant characteristics of the courtyards, the garden, York city wall, and views of the cathedral.
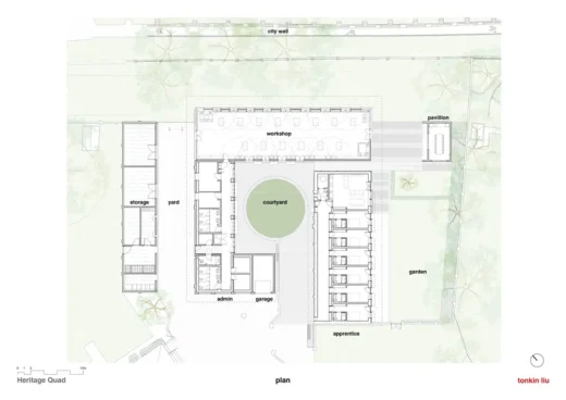
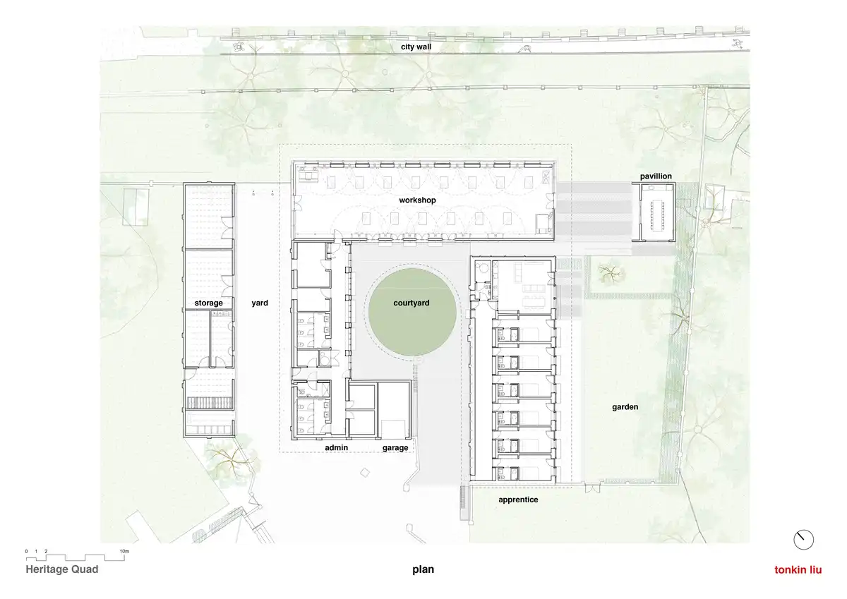
Heritage Quad
The Heritage Quad is set in a garden and a garage courtyard in the Precinct, immediately next to the city wall. The proposal has sought to knit into the sensitive scale of the setting, the existing structures, and connect key views. It has repurposed the structure of the existing U-shaped buildings, with a new wing to create a complete quad, a fitting typology for bringing together a community of craftspeople. Around the courtyard, facilities for masons, apprentices, researchers, visitors, integrate their daily workings. Northern light, natural ventilation, structural efficiency, and solar orientation are optimised through the iterative development of the roofs’ geometry.
A plan that is square in the ground meets a circle in the sky. The proposed new timber roof lifts to invite views into the workshop from the multitude of visitors strolling on the city wall, and to make a circle in the centre framing views of the cathedral for the working masons, defining a circle of wildflowers on the ground. Radiating timber beams continue from inside to outside, accentuating the undulating geometry. Underneath the unifying roof is a perimeter of covered outdoor seating. The roof brings rainwater inwards to the heart of the courtyard, akin to a Roman Impluvium, where a wildflower circle is open to the sky. It then journeys sideways to land in two rainwater tanks near the entrance to the Heritage Quad.
Technology Hub
The Technology Hub is set in the triangle of the workyard close to the cathedral and the city centre. The structural line of the new building fans out, each arrayed and lifted to the same height, forming a hyperboloid shell structure with a diminishing perspective.
The Tech Hub brings together glaziers, joiners, plumbers, electricians, and a new drawing room. The typology of a long shed negotiates with the idiosyncrasies of the triangle’s geometry, and new WC, and CAD facilities . Delicate steel trusses on columns support the timber vault roof, which are stressed-skin structures utilising shell action for stiffness. The fan-vaulted roof is entirely covered in PV, optimising northern light, passive ventilation, structural efficiency, and solar orientation.
Catalyst for preservation
Together as a pair, the Heritage Quad and the Tech Hub form an integrated, holistic story with their surrounding architecture and landscape. Together they endeavour to inspire and nurture future generations of craftspeople signifying the preservation and vitalisation of our shared heritage.
Client-Design-Construction Team
York Minster (Client); Integration (M&E Engineering), Webb Yates (Structural Engineering), Donald Insalls (Heritage), Savill’s (Planning), Seam (Lighting Design), Assent (Building Control) Gwen Brewer (Fire Engineering), Buckland Timber (Timber specialist contractor), Simpson (Main Contractor)
Project completion: 2024
Contact: studio(at)tonkinliu.co.uk
Tonkin Liu Ltd
5 Wilmington Square
London WC1X 0ES
+44 (0) 7720 399033
www.tonkinliu.co.uk
+++
Previously on e-architect:
6 November 2021
Tonkin Liu wins design competition for York Minster’s Centre of Excellence
Design: tonkin liu
York Minster Centre of Excellence Building Design
Tonkin Liu has won a competition to provide facilities that establish the York Minster Precinct as an internationally recognised Centre of Excellence for heritage craft skills.
Three architecture practices (confidential) submitted designs as part of an invited competition. The vision for a world-class centre for research, education, and training is a key element of the York Minster Precinct Neighbourhood Plan.
The facilities include two buildings, the Heritage Quad and the Technology Hub. The ambition is for them to deliver training in skills vital to the ongoing cycle of repair, restoration and conservation and development of York Minster and other ancient buildings and monuments. Skills in ancient and modern craft techniques and processes will advance alongside one another, in buildings that house workshops, a state-of-the art 5 Axis CNC saw, a new band saw, and halls of residence.
The proposed Heritage Quad is set within a garden, and repurposes the structure of the existing U-shaped buildings. These are mirrored with a new wing to create a complete quad, a fitting typology for bringing together a community of craftspeople. Around a working courtyard garden, facilities for masons, scaffolders, gardeners, apprentices, researchers, visitors, will integrate their daily workings.
The Heritage Quad is situated in the Precinct’s heritage setting, between the city wall and the cathedral. The design has sought to knit into the sensitive scale of the setting and frame key views: from the city wall to the north, and south towards the cathedral.
The proposed timber green-roofed structure lifts to invite views into the workshop from visitors taking strolls on the city wall, as from inside the workshops framing distant views of the cathedral. Northern light, passive ventilation, vistas, structural efficiency, and solar orientation are optimised through the iterative development of the roofs’ geometry.
The Technology Hub is closer to the cathedral and utilises existing workshop buildings. The proposed timber-roofed workshop will support the facilities of masons, electricians, plumbers, joiners, heritage builders, estate management that flank the site. The aim is to create an inspiring workshop that improves the daily workings of the different teams and showcases advanced digital machinery.
In both the Heritage Quad and the Technology Hub, existing structures will be reused and renewed, to minimise the embodied carbon. Natural light and ventilation, combined with PVs and MVHR, will deliver a key project en-route to operational net zero carbon, providing electricity for the day-time use of the machines in the workshop. York Minster will take the lead on sustainable development within a complicated heritage estate, focusing on low carbon and renewable technology to drive exemplary best practice, in consultation with City of York Council, Historic England and other key stakeholders.
This is a tremendous opportunity to create nature-focused architecture that celebrates craft, connecting the shared craftsmanship values of our past, present and future. These buildings aspire to preserve and to catalyse our shared heritage in craft, inspiring people of all generations, locally, nationally, and internationally.
Comments
Dean Jonathan said: “With the generous support of the York Minster Fund, we are aiming to create a world leading facility where ancient heritage craft skills can flourish alongside the latest technology and innovation in the field. We have already established knowledge sharing and partnerships with the great cathedral cities of Trondheim, Milan, Cologne and Washington through the vision set out in our Neighbourhood Plan.”
Alex McCallion, Director of Works and Precinct and programme lead for the York Minster Precinct Neighbourhood Plan said: “The Centre of Excellence will give the Works Department the facilities needed to thrive and to become an international Centre of Excellence for heritage craft skill and heritage estate management.
We will work in partnership with other institutions, not least the University of York and City of York Council to continue to build the city’s profile as a world class leader in the care of heritage assets. Importantly for York Minster, this critical programme of activity is essential if we are to secure the long-term environmental, financial and heritage sustainability of York Minster for future generations to enjoy as we do today.
Richard Shaw, Chairman of York Minster Fund said: “We are delighted with the appointment of Tonkin Liu. Their understanding of the brief has resulted in inspirational designs that do justice to a Centre of Excellence which will be of global significance.”
York Minster Centre of Excellence by Tonkin Liu – Building Information
Project Details
Client: York Minster
Project Team:
Architect: Tonkin Liu
Heritage: Donald Insall Associates, Manchester
Structural Engineer: Webb Yates
Sustainability: Greengauge
Horticulturalist: Nigel Dunnett
Lighting Consultant: Seam
York Minster Centre of Excellence Building images / information from Tonkin Liu
Location: York, YO1 7EW, North Yorkshire, England, UK
Architecture in York
York Architectural Projects
RIBA Yorkshire Award winners 2025 Winners
York Buildings – selection form e-architect below:
Wonderlab The Bramall Gallery, National Railway Museum York:

photo © Hufton+Crow
National Railway Museum York Design Competition News
Design: Heneghan Peng Architects with Arup
York Art Gallery Building
Design: Ushida Findlay
York Theatre Royal Building Redevelopment
Design: De Matos Ryan
Foundation Myths at York Art Gallery
Design: Charles Holland, Ordinary Architecture
York St. John University Creative Centre Building
Design: Tate Harmer Architects
Northeastern Railway Company Offices conversion
++
Buildings in Yorkshire
Yorkshire Architectural Projects
Leeds Architecture Designs – chronological list
Comments / photos for the York Minster Centre of Excellence Building design by Tonkin Liu Architects, England, UK page welcome


















